TWO LEVELS OF LANDSCAPE DESIGN OFFERED

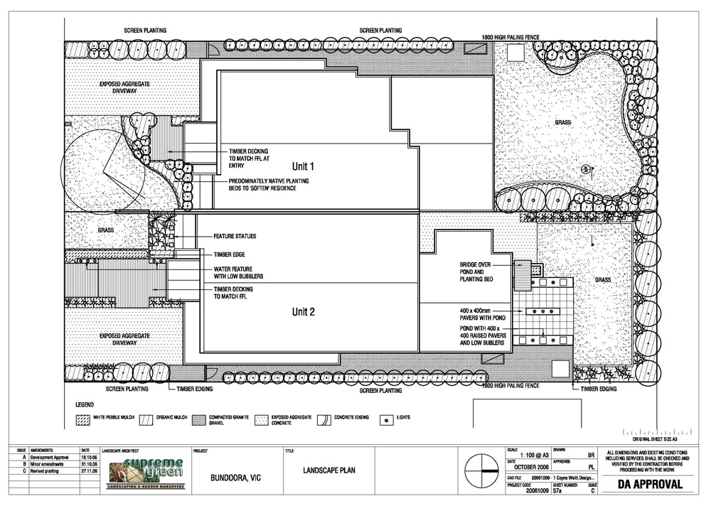
1. ARCHITECT DESIGNED PLAN

Prepared by our qualified landscape architect using Autocad, suitable for council submissions. DWG format file required in advance showing lot size and fixed structures.

 

EXAMPLE

 

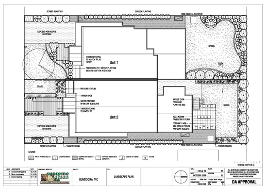
2. EASY-READ CONCEPT PLAN

Perfect for your own understanding of layouts, plants etc. All in colour to scale and computer designed, showing all the elements discussed in your consultation

 

EXAMPLE 

Supreme Green gives you a full rebate on the cost of this type of design on the completion of the project

 

 

*TIP: Having site plans on hand or in electronic format will assist in keeping down the cost of your design